Ga naar inhoud

Te koop: woonhuis Beekpunge 123 7761 KD Schoonebeek

Verkocht

€ 319.500,- k.k.

Een keurige en praktisch ingedeelde HELFT VAN DUBBEL met garage, carport, serre én een hele vrije ligging aan de achterzijde!

Dit comfortabele woonhuis, met energielabel A, is gebouwd in 2005 en staat op een mooi perceel van 274 m2. Totaal telt de woning drie slaapkamers. De 2e verdieping heeft veel daglicht en biedt je nog genoeg mogelijkheden om een extra kamer te realiseren. De woning is keurig onderhouden, voorzien van 14 zonnepanelen en de verwarming en het warme water worden verzorgd door CV-combiketel uit 2021. In de zomer houd je het koel door de airco, die tevens kan verwarmen. En handig om te weten: de kunststof kozijnen zorgen er voor dat je onderhoud van de woning een stuk makkelijker is.

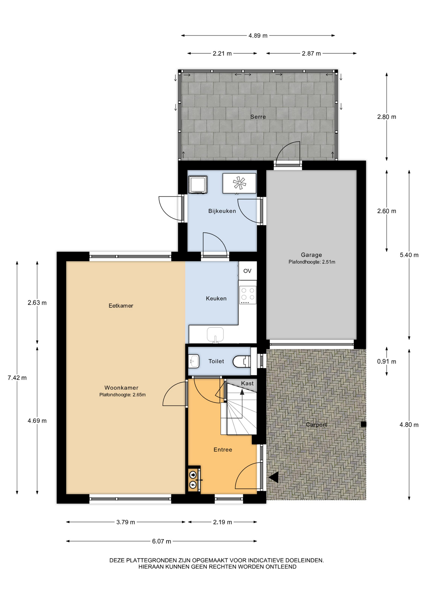
Naast de woning is een aangebouwde stenen garage, welke inpandig bereikbaar is. De praktische bijkeuken geeft toegang tot de garage en de achtertuin. In de onderhoudsvriendelijke achtertuin staat een mooie tuinkamer met glazen schuifwanden. Deze heerlijke plek staat garant voor veel fijne tuinuurtjes, ook als het weer net wat frisser is. Het parkeren van je auto kan onder de carport en op de ruime oprit.

Aan de achterzijde woon je hier heel vrij! De buurt is rustig, voor kleinsten onder ons is er een speeltuintje in de straat of het veld achter het huis om een balletje te trappen. Met enkele minuten zijn winkels, een school en andere voorzieningen bereikbaar. In het gezellige Coevorden en Emmen ben je met ca. 15 autominuten. En een keertje voordelig boodschappen doen over de grens? Trek daar 5 minuten voor uit en je bent in Emlicheim.

Indeling:
Begane grond: entree/ hal – trapopgang – trapkast – toilet met fonteintje – woonkamer met voor de zithoek en achter ruimte voor de eethoek – open keuken met hoekopstelling voorzien van een koelkast, vaatwasser, inductiekookplaat, afzuigkap en combimagnetron – bijkeuken met achteringang en toegang tot de garage. Vanuit de garage is er toegang naar de royale tuinkamer/ serre.
1e Verdieping: overloop – drie mooie slaapkamers – keurige badkamer met ligbad, tweede toilet, douchecabine en wastafelmeubel. Vaste trap naar;
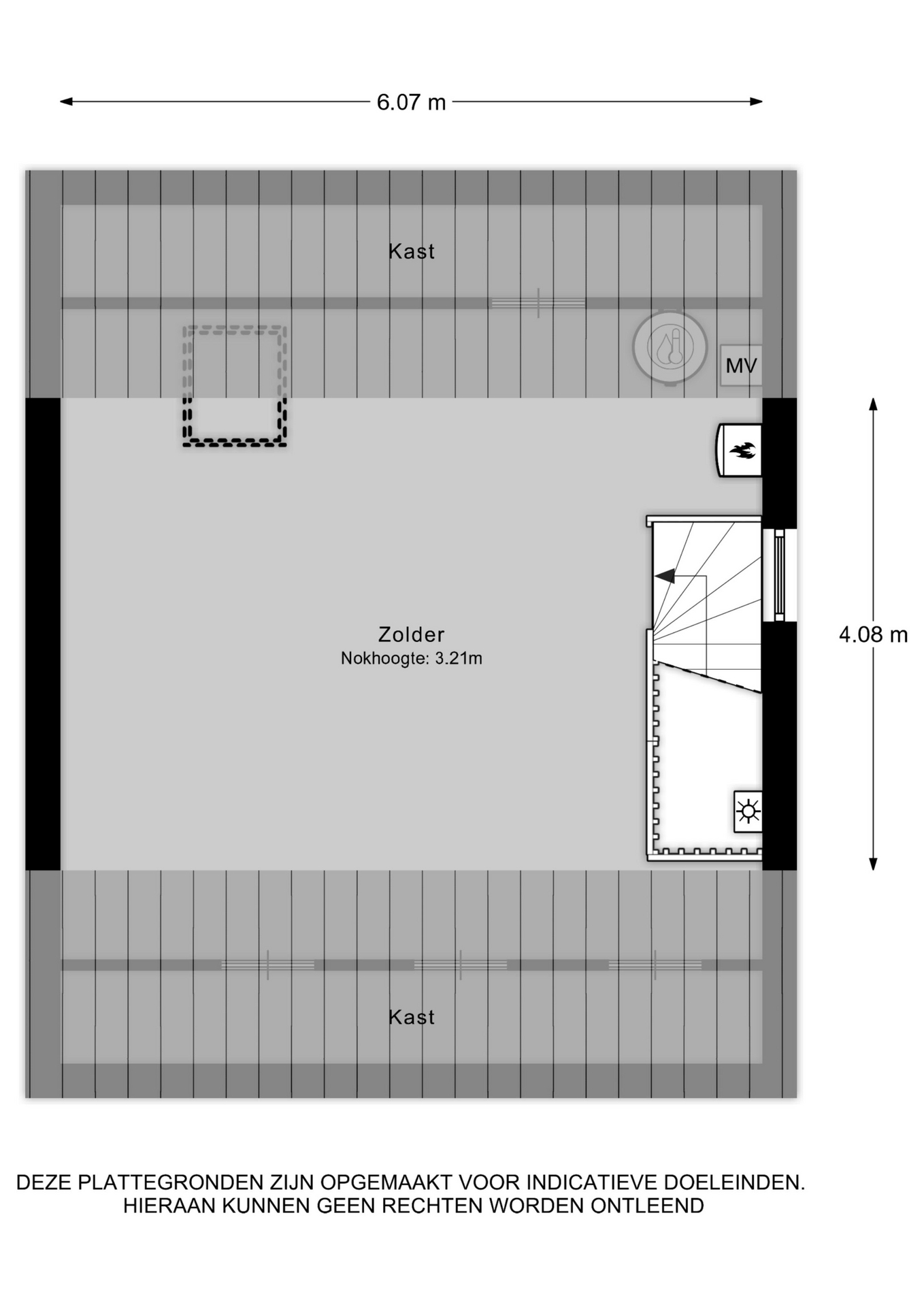
2e Verdieping: een ruime zolderverdieping met dakraam en opstelling van de CV-combiketel. Deze verdieping biedt je tal van mogelijkheden, bijvoorbeeld om een vierde slaapkamer of een werkkamer te realiseren!

Wetenswaardigheden:
Bouwjaar: 2005
Perceeloppervlakte: 274 m2
Isolatie: volledig geïsoleerd en kunststof kozijnen
Energielabel: A
Verwarming middels CV-combiketel Intergas (bouwjaar ca. 2021)
Aircosysteem om te verwarmen of te koelen
14 zonnepanelen
3 slaapkamers en mogelijkheid voor 4
Vrije ligging achter!

  • 122 m2
  • 274 m2
  • 3

Kenmerken Beekpunge 123

Overdracht

Vraagprijs€ 319.500,- k.k.
AanvaardingIn overleg

Oppervlaktes en inhoud

Perceel oppervlakte274 m2
Woonoppervlakte122 m2
Inhoud508 m3

Bouw

SoortEengezinswoning
BouwvormBestaande bouw
Bouwjaar2005
Dak typeZadeldak
IsolatievormenDakisolatie, Muurisolatie, Vloerisolatie, Dubbelglas, HR glas
EnergielabelA

Indeling

Aantal verdiepingen3
Aantal kamers4
Aantal slaapkamers3
Aantal badkamers1

Maandlasten

Ligging Beekpunge 123

Voorzieningen

Centraal gelegen informatie over de buurt

Aantal inwoners

In de gemeente

107.490

Leeftijd

in percentages van totaal

Huishoudsamenstelling

in percentages van totaal

28%

20% NL

38%

20% NL

35%

20% NL

Vergelijkbaar woningaanbod