€ 259.000,- k.k.
‘Met verse warme broodjes van de bakker en als het zaterdag is ook een krantje, trek ik de voordeur achter me dicht. Heerlijk dat dit allemaal zo dichtbij huis is! Uitkijkend over de bedrijvigheid bij de ondergelegen winkels, kletsen we over het weekend dat gaat komen. Kop koffie of verse jus erbij: genieten van het goede leven!’
Je bent van harte welkom aan het Meidoornplein 37! Een kleinschalig appartementencomplex boven winkelruimte in het centrum van Wezep. De verrassend ruime maisonnette op nummer 37 ligt op de 1e verdieping. Je bereikt je appartement middels een afgesloten entree met trapopgang. Aan de voor- en achterzijde kun je genieten van buiten. Vanaf je eigen balkon kijk je uit op de gezelligheid van het centrum. Aan de achterzijde heb je een groot gezamenlijk dakterras.
Binnen ziet het appartement er keurig uit. Een tijdloze witte keuken, een woonkamer met aparte eetkamer en op de verdieping drie grote slaapkamers en een badkamer met douche, toilet en wastafelmeubel.
Op de begane grond is de eigen berging waar je o.a. een fiets zou kunnen stallen. Niet dat je die per se nodig hebt om naar de supermarkt, het station of naar de sportschool te gaan, want alles is op loopafstand!
Als je belt met Keizer Garantiemakelaars plannen we graag een bezichtiging met je in. Je bent welkom!
Indeling:
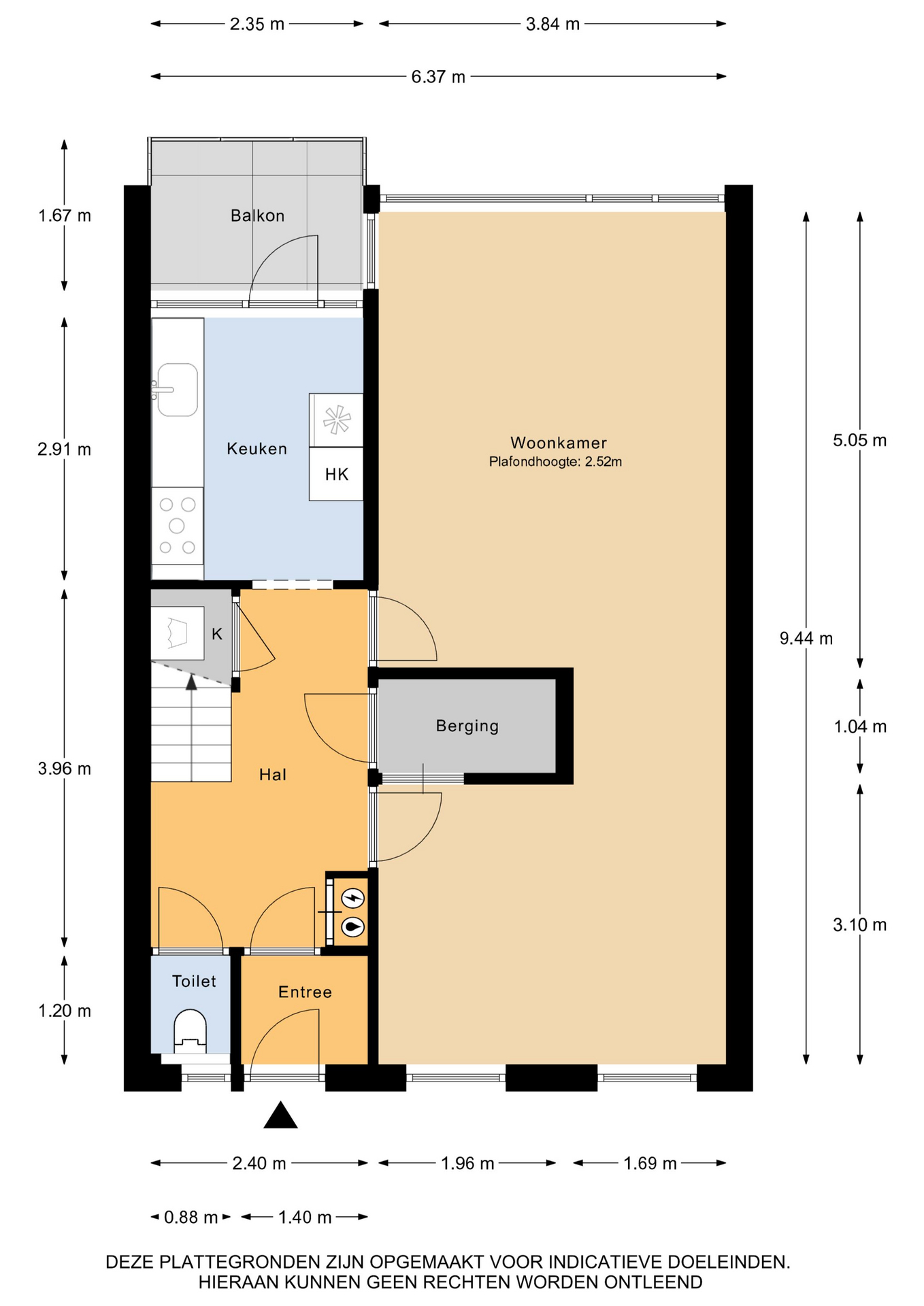
Begane grond: centrale afgesloten entree op de begane grond met brievenbussen. De bergingen bevinden zich aan de achterzijde van het gebouw.
1e Verdieping appartement: entree/ hal met garderobe – gang – toilet – trapopgang verdieping – trapkast met wasmachine-aansluiting – inloop provisiekast – eetkamer – woonkamer – keuken – balkon.
Verdieping in het appartement: overloop met CV-opstelling – 3 slaapkamers – badkamer.
Wetenswaardigheden:
Bouwjaar: 1967
Energielabel: C
Verwarming en warmwater: CV-installatie Intergas (2020)
Verrassend ruim appartement met 3 slaapkamers op de verdieping
Eigen balkon en gezamenlijk dakterras
Eigen berging op de begane grond
VvE: bijdrage per maand € 121,-*
Ideale ligging in het winkelcentrum van Wezep met genoeg parkeergelegenheid om de deur
(*Er ligt een voorstel van de VvE om in het voorjaar 2025 de dakkapellen te verduurzamen. De VvE zal hiervoor een lening afsluiten bij de SVN en als dit goedgekeurd wordt zal de maandelijkse VvE bijdrage ca. € 80,- per maand verhoogd worden.)
- 103 m2
- 3
Kenmerken Meidoornplein 37
Overdracht
| Vraagprijs | € 259.000,- k.k. |
|---|---|
| Aanvaarding | In overleg |
Oppervlaktes en inhoud
| Woonoppervlakte | 103 m2 |
|---|---|
| Inhoud | 326 m3 |
Bouw
| Soort | Maisonnette |
|---|---|
| Bouwvorm | Bestaande bouw |
| Bouwjaar | 1967 |
| Dak type | Zadeldak |
| Isolatievormen | Dubbelglas, Grotendeels dubbelglas |
| Energielabel | C |
Indeling
| Aantal verdiepingen | 2 |
|---|---|
| Aantal kamers | 4 |
| Aantal slaapkamers | 3 |
| Aantal badkamers | 1 |
Maandlasten
Ligging Meidoornplein 37
Voorzieningen
- Christelijke basisschool De Spoorzoeker 128 m Cotoneasterstraat 19A WEZEP
- Christelijke Hogeschool Windesheim 7 km Campus 2 ZWOLLE
- AOC De Groene Welle 7 km Koggelaan 7 ZWOLLE
- Christelijke Hogeschool Windesheim 7 km Campus 2 ZWOLLE
- Theologische Universiteit van de Gereformeerde Kerk (Vrijg) in Nederland 12 km Broederweg 15 KAMPEN
Centraal gelegen informatie over de buurt
Aantal inwoners
In de gemeente
23.256
Leeftijd
in percentages van totaal
Huishoudsamenstelling
in percentages van totaal
30%
20% NL
36%
20% NL
34%
20% NL