€ 349.083,- k.k.
Welkom op nummer 27 aan ‘t Veld! Hier woon je in een fijne buurt, te midden van (jonge) gezinnen met schuin tegenover je woning een leuke speeltuin en tegelijkertijd woon je op korte afstand van het centrum, scholen en alle andere voorzieningen. Een goede en fijne combinatie!
Deze woning is gebouwd in 1982, heeft totaal drie slaapkamers en eventueel kun je er vier maken wanneer je de tussenwand terugplaatst in de ouderslaapkamer. De ruime badkamer is ingericht met alles wat je graag wilt: een ligbad, douchehoek, tweede toilet en wastafelmeubel met dubbele kraan. De neutrale kleurstelling zorgt dat deze badkamer eigenlijk wel bij iedereen past!
In februari 2025 is het energielabel afgegeven en dit een mooi A-label. Er zijn 8 zonnepanelen en de verwarming van de woning wordt verzorgd door de CV-combiketel uit 2013. Aan de achterzijde is een groot elektrisch bedienbaar uitvalzonnescherm. De achtertuin ligt goed op de zon, is via een achterom bereikbaar en zowel voor als achter heb je hier privacy.
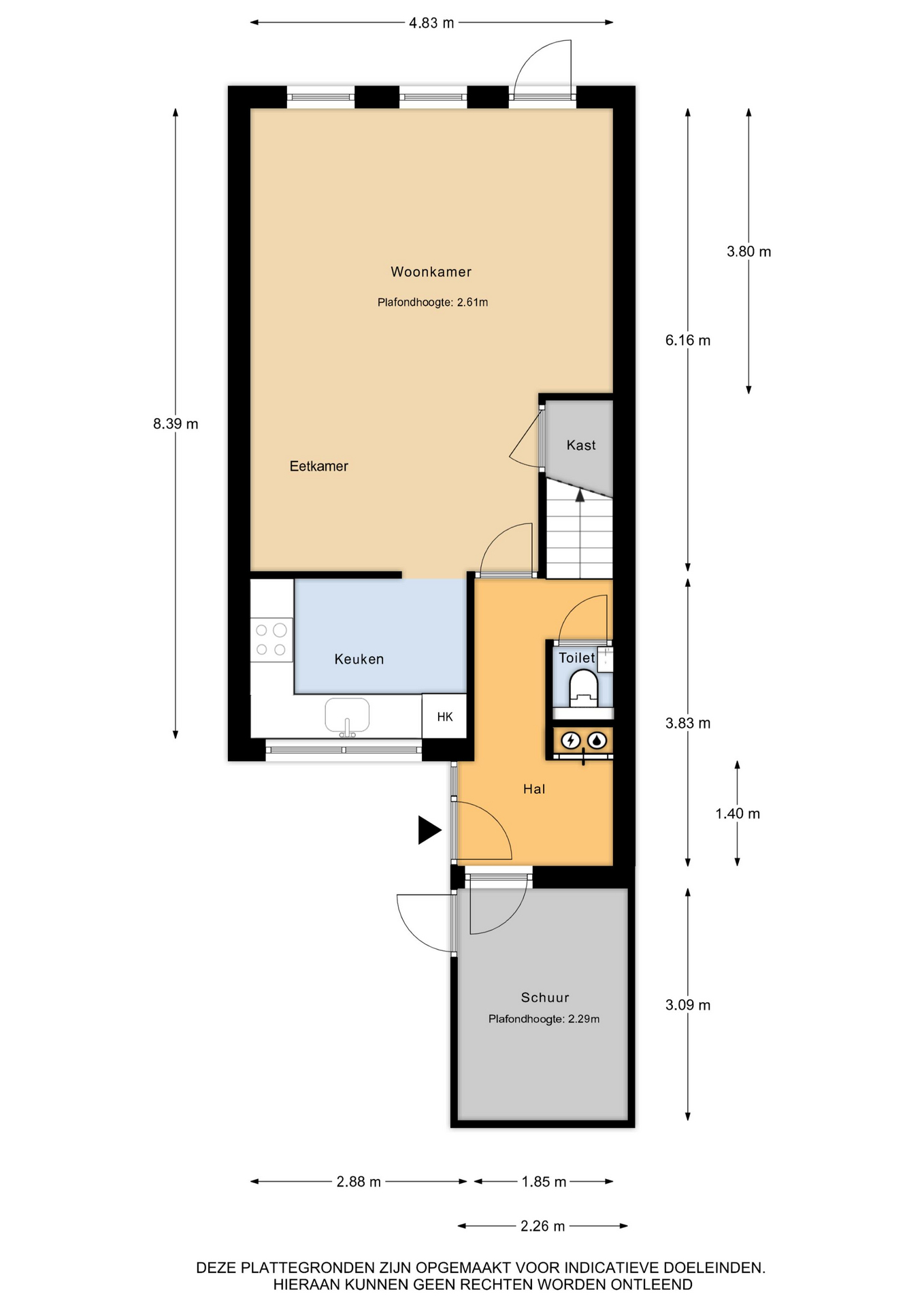
Indeling:
Begane grond: entree/ hal met trapopgang – toilet met fonteintje – toegang tot de inpandige berging – toegang tot de woonkamer met open keuken. De keuken is ingericht met een koelkast, inductiekookplaat, afzuigkap, vaatwasser, keukenboiler en oven.
1e Verdieping: overloop, 2 slaapkamers (voorheen 3 slaapkamers) – badkamer met ligbad, inloopdouche, toilet en wastafel met dubbele kraan.
2e Verdieping: overloop met wasmachine aansluiting en CV-opstelling – royale slaapkamer met dakkapel.
Zowel op de 1e als op de 2e verdieping is er veel bergruimte.
Wetenswaardigheden:
Bouwjaar: 1982
Perceeloppervlakte: 134 m2
8 Zonnepanelen
Energielabel: A
3 slaapkamers, 4 mogelijk
Rustige buurt met speeltuin ‘voor de deur’
- 103 m2
- 134 m2
- 3
Kenmerken 't Veld 27
Overdracht
| Vraagprijs | € 349.083,- k.k. |
|---|---|
| Aanvaarding | In overleg |
Oppervlaktes en inhoud
| Perceel oppervlakte | 134 m2 |
|---|---|
| Woonoppervlakte | 103 m2 |
| Inhoud | 363 m3 |
Bouw
| Soort | Eengezinswoning |
|---|---|
| Bouwvorm | Bestaande bouw |
| Bouwjaar | 1982 |
| Dak type | Zadeldak |
| Isolatievormen | Muurisolatie, Dubbelglas |
| Energielabel | A |
Indeling
| Aantal verdiepingen | 3 |
|---|---|
| Aantal kamers | 4 |
| Aantal slaapkamers | 3 |
| Aantal badkamers | 1 |
Maandlasten
Ligging 't Veld 27
Voorzieningen
- Christelijk Kindcentrum De Schaapskooi 30 m Veluwelaan 8 WEZEP
- Christelijke Hogeschool Windesheim 6 km Campus 2 ZWOLLE
- AOC De Groene Welle 7 km Koggelaan 7 ZWOLLE
- Christelijke Hogeschool Windesheim 6 km Campus 2 ZWOLLE
- Theologische Universiteit van de Gereformeerde Kerk (Vrijg) in Nederland 12 km Broederweg 15 KAMPEN
Centraal gelegen informatie over de buurt
Aantal inwoners
In de gemeente
23.256
Leeftijd
in percentages van totaal
Huishoudsamenstelling
in percentages van totaal
24%
20% NL
35%
20% NL
42%
20% NL