€ 399.919,- k.k.
“Een woning waar alles kortgeleden aangepakt is…, daar was ik al die tijd al naar op zoek! Een moderne keuken, strakke badkamer met heerlijke sunshower en die dakopbouw, die zorgt voor zoveel extra ruimte. Op de 2e verdieping is nu een mooie grote slaapkamer. En nee, ik had hier zeker niet mijn roze bril op. Ik nodig je graag uit om het met eigen ogen te komen bekijken!”
Welkom aan de Azaleastraat 19 in Wezep! Hier is al het werk je al uit handen genomen. Van buiten tot binnen, van onder tot boven. De jonge keuken van 2 jaar oud is voorzien van mooie inbouwapparatuur, waaronder een vaatwasser, quooker, inductiekookplaat met interne afzuiging, koelkast en vriezer en grote oven. In de moderne badkamer (2023) is het elke keer genieten onder douche met sunshower en aangename vloerverwarming. Zomers houd je het in huis lekker koel door de airco’s die op alle verdieping van de woning aanwezig zijn.
Buiten kun je heerlijk zitten onder de grote veranda met glazen pui. Aan de achterzijde van de woning zijn twee schuren: één geïsoleerde berging met wasmachine- en drogeropstelling en een tweede schuur voor gereedschap e.d. Naast het huis kun je je eigen auto parkeren en is nog een houten fietsenberging en een extra opslagruimte.
Met alle winkels bij je aan het einde van de straat is dit toch ook wel een hele praktische locatie. Ideaal dat je zo voor een boodschapje, bloemetje, warm visje of een lekker broodje haalt. Je loopt de deur uit en bent ook zo weer thuis! Scholen en sportvoorzieningen bereik je makkelijk per fiets. De dichtstbijzijnde stad is Zwolle en daar ben je al met ca. 20 minuten.
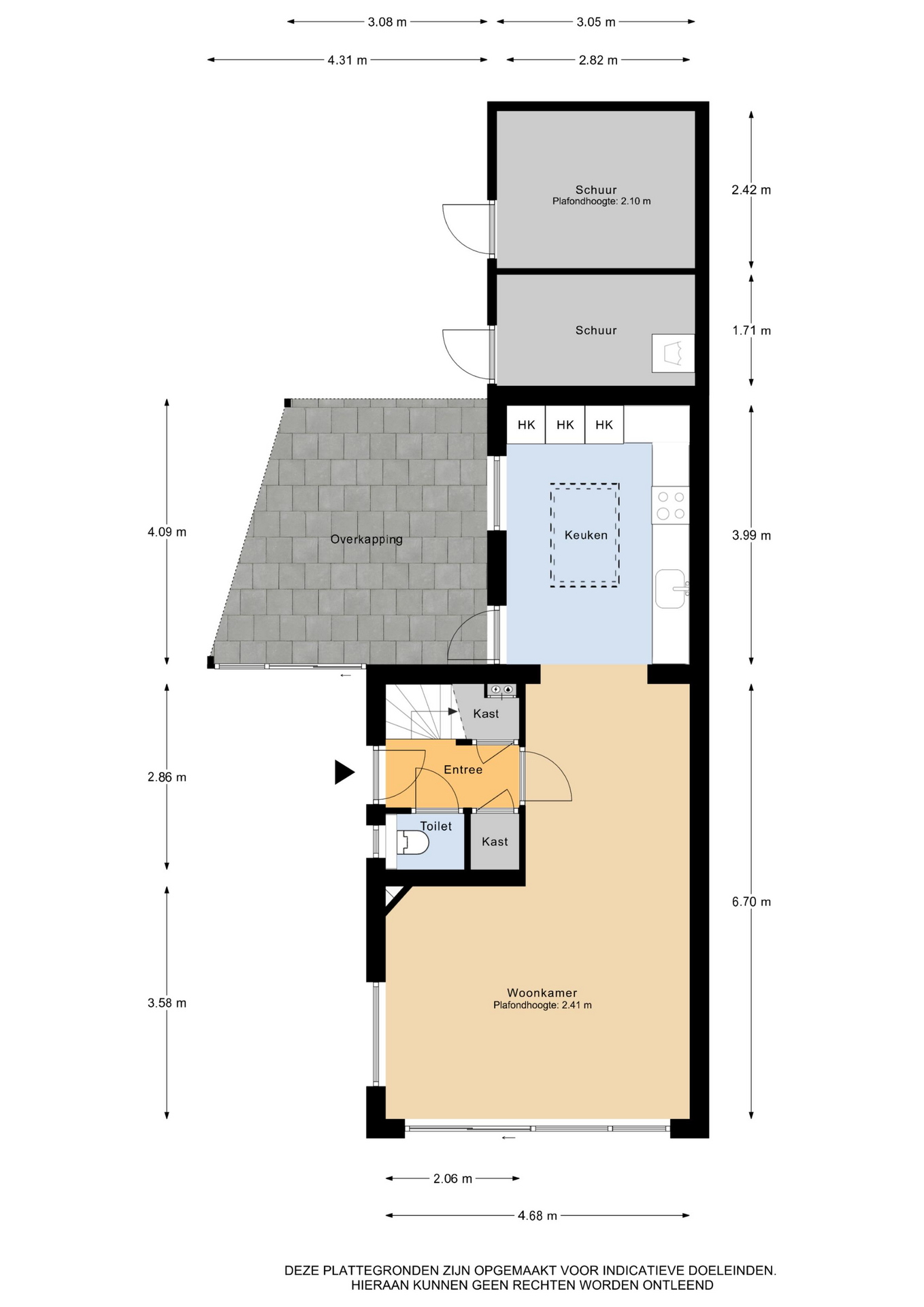
Indeling:
Begane grond: entree/ hal – trapopgang – trap-/ provisiekast – toilet – woonkamer met open keuken en achteringang.
1e Verdieping: overloop – vaste kast en tweede vaste kast met opstelling CV-combiketel – twee slaapkamers – badkamer met wastafelmeubel met dubbele kom, douchehoek met sunshower, toilet – trapopgang naar 2e verdieping.
2e Verdieping: ruime slaapkamer met dubbele dakkapel.
Wetenswaardigheden:
Bouwjaar: 1960
Perceeloppervlakte: 184 m2
Isolatie: dubbel glas, muur-, dak- en vloerisolatie
Verwarming en warmwater middels CV-combiketel uit 2018
Energielabel: C
Kunststof kozijnen (m.u.v. toilet)
Voorzien van 3 airco’s (koelen en verwarmen)
Voorzien van 20 zonnepanelen
- 87 m2
- 184 m2
- 3
Kenmerken Azaleastraat 19
Overdracht
| Vraagprijs | € 399.919,- k.k. |
|---|---|
| Aanvaarding | In overleg |
Oppervlaktes en inhoud
| Perceel oppervlakte | 184 m2 |
|---|---|
| Woonoppervlakte | 87 m2 |
| Inhoud | 343 m3 |
Bouw
| Soort | Eengezinswoning |
|---|---|
| Bouwvorm | Bestaande bouw |
| Bouwjaar | 1960 |
| Dak type | Zadeldak |
| Isolatievormen | Dakisolatie, Muurisolatie, Vloerisolatie, Dubbelglas, HR glas |
| Energielabel | C |
Indeling
| Aantal verdiepingen | 3 |
|---|---|
| Aantal kamers | 4 |
| Aantal slaapkamers | 3 |
| Aantal badkamers | 1 |
Maandlasten
Ligging Azaleastraat 19
Voorzieningen
- Christelijke Basisschool De Rank 176 m Ruitersveldweg 10 WEZEP
- Christelijke Hogeschool Windesheim 7 km Campus 2 ZWOLLE
- AOC De Groene Welle 7 km Koggelaan 7 ZWOLLE
- Christelijke Hogeschool Windesheim 7 km Campus 2 ZWOLLE
- Theologische Universiteit van de Gereformeerde Kerk (Vrijg) in Nederland 12 km Broederweg 15 KAMPEN
Centraal gelegen informatie over de buurt
Aantal inwoners
In de gemeente
23.256