€ 735.000,- k.k.
Ruime twee- onder- één kapwoning met ruime tuin en inpandige garage.
Deze ruime en moderne 2-onder-1 kap met 148 m2 woonoppervlakte is net even anders dan je gewend bent en dat maakt hem zo aantrekkelijk! Het geheel is gelegen op een perceel van maar liefst 331 m², waarbij de tuinligging op het zuidoosten het tot een genot maakt. De locatie is uitstekend. Relatief dicht bij het winkelcentrum van de wijk, terwijl de toegangsweg tot de binnenstad ook snel te bereiken is. De wijk is ruim van opzet met veel groen en water. Nabij de woning bevindt zich bijvoorbeeld het speelveld van het Akkerbergplein. Ook ligt het grotere Twistvlietpark op loopafstand. Met de bus of trein naar het station of de binnenstad? Geen probleem, de bushalte en het treinstation van Stadshagen liggen op loopafstand.
Indeling:
Begane grond:
Centraal op de begane grond is de entree/hal gesitueerd. Van hieruit is er toegang tot de woonkamer, de garage en de keuken. In de hal bevindt zich de trapopgang naar de verdieping. Ook is het toilet van hieruit bereikbaar. De keuken is gesitueerd aan de achterzijde is en is compleet ingericht met: Amerikaanse koelkast, combi- magnetron, quooker, insinkerator, inductie kookplaat en een afzuigkap.
De woonkamer is licht en ruim en voorzien van vloerverwarming (net als de gehele begane grond) en een sfeervolle gashaard. Openslaande tuindeuren bieden toegang tot de tuin. Erg praktisch is de trapkast die extra bergruimte biedt. Vanuit de woonkamer is er zicht op de straat en op de tuin.
Vanuit de hal is het toilet te bereiken maar ook de ruime inpandige garage.
Eerste verdieping:
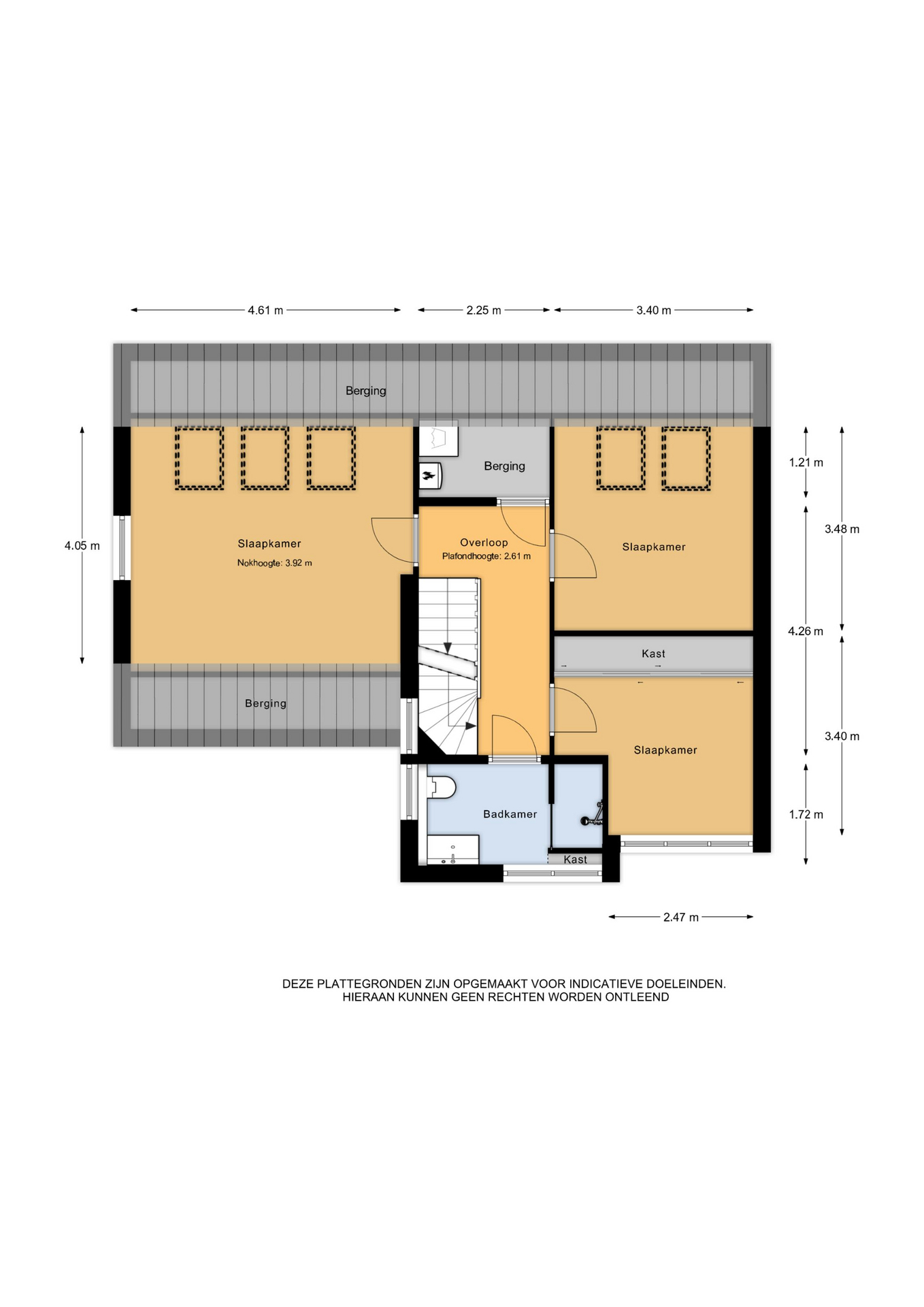
Overloop met toegang tot de slaapkamers en de badkamer. Boven de garage bevindt zich een enorme slaapkamer van maar liefst 23 m²! De beleving van de ruimte wordt versterkt door het hoge plafond dat tot in de nok loopt en de vele dakramen. Verder bevinden zich op deze verdieping nog twee ruime slaapkamers en een praktische bergruimte met de opstelling van de CV en mechanische ventilatie. De luxe en sfeervolle badkamer (2024) is voorzien van: douchehoek met een heerlijke sunshower, 2de toilet en wastafelmeubel.
Tweede verdieping:
Overloop en de 4de slaapkamer die door de twee dakramen heerlijk licht is.
Tuin:
De tuin ligt op het zonnige zuidoosten en is bereikbaar via een achterom. Er is een houten blokhut en een grootte overkapping en voor de garage is er parkeergelegenheid voor 2 auto’s op eigen terrein.
Kenmerken:
* Ruime kavel 331 m2
* 148 m2 aan woonoppervlak
* Volledig geïsoleerd
* CV bouwjaar 2006
* Airco bouwjaar 2021
* 2 parkeerplaatsen
* Inpandige garage
* Vloerverwarming begane grond uitgezonderd garage (bijverwarming)
* 15 zonnepanelen
- 148 m2
- 331 m2
- 4
Kenmerken Raatakkerstraat 26
Overdracht
| Vraagprijs | € 735.000,- k.k. |
|---|---|
| Aanvaarding | In overleg |
Oppervlaktes en inhoud
| Perceel oppervlakte | 331 m2 |
|---|---|
| Woonoppervlakte | 148 m2 |
| Inhoud | 626 m3 |
Bouw
| Soort | Eengezinswoning |
|---|---|
| Bouwvorm | Bestaande bouw |
| Bouwjaar | 2006 |
| Dak type | Zadeldak |
| Isolatievormen | Volledig geïsoleerd |
| Energielabel | A |
Indeling
| Aantal verdiepingen | 3 |
|---|---|
| Aantal kamers | 5 |
| Aantal slaapkamers | 4 |
| Aantal badkamers | 1 |
Maandlasten
Ligging Raatakkerstraat 26
Voorzieningen
- obs De Schatkamer 417 m Wildwalstraat 38 ZWOLLE
- Christelijke Hogeschool Windesheim 3 km Campus 2 ZWOLLE
- Deltion College 2 km Mozartlaan 15 ZWOLLE
- Christelijke Hogeschool Windesheim 3 km Campus 2 ZWOLLE
- Theologische Universiteit van de Gereformeerde Kerk (Vrijg) in Nederland 10 km Broederweg 15 KAMPEN
Centraal gelegen informatie over de buurt
Aantal inwoners
In de gemeente
125.548
Leeftijd
in percentages van totaal
Huishoudsamenstelling
in percentages van totaal
18%
20% NL
22%
20% NL
60%
20% NL