€ 449.018,- k.k.
Goed onderhouden HELFT VAN DUBBEL met royale woon- en leefvertrekken, praktische bijkeuken en inpandig bereikbare garage!
Een keurig verzorgde woning met een fijne tuin! Heerlijk! De L-vormige woonkamer is straatgericht en heeft openslaande deuren naar het overdekte terras. De keuken is ruim genoeg voor een eethoek en de praktische bijkeuken is ideaal. Vanuit de bijkeuken kun je inpandig de garage bereiken. Op de eerste verdieping zijn drie royale slaapkamers en de badkamer is ook zeker ruim te noemen.
De 2e verdieping is nog geheel indeelbaar, dus nog ruimte voor een werkplek of hobby nodig? Je kunt hier zeker wat mee!
Deze ruime woning uit het bouwjaar 1996 staat op een ruim perceel van 349 m2. De achtertuin is keurig verzorgd en fraai aangelegd met gazon en borders. Er zijn twee houten bergingen en aan de achterzijde van de woning is een onderhoudsvriendelijke veranda. De ligging is rustig en op fietsafstand van scholen, het winkelcentrum en sportvoorzieningen. De goede aansluiting vanuit Wezep op de A28 en A50 is ideaal als je vaker de weg op moet en zo ben je met 10-15 min in Zwolle.
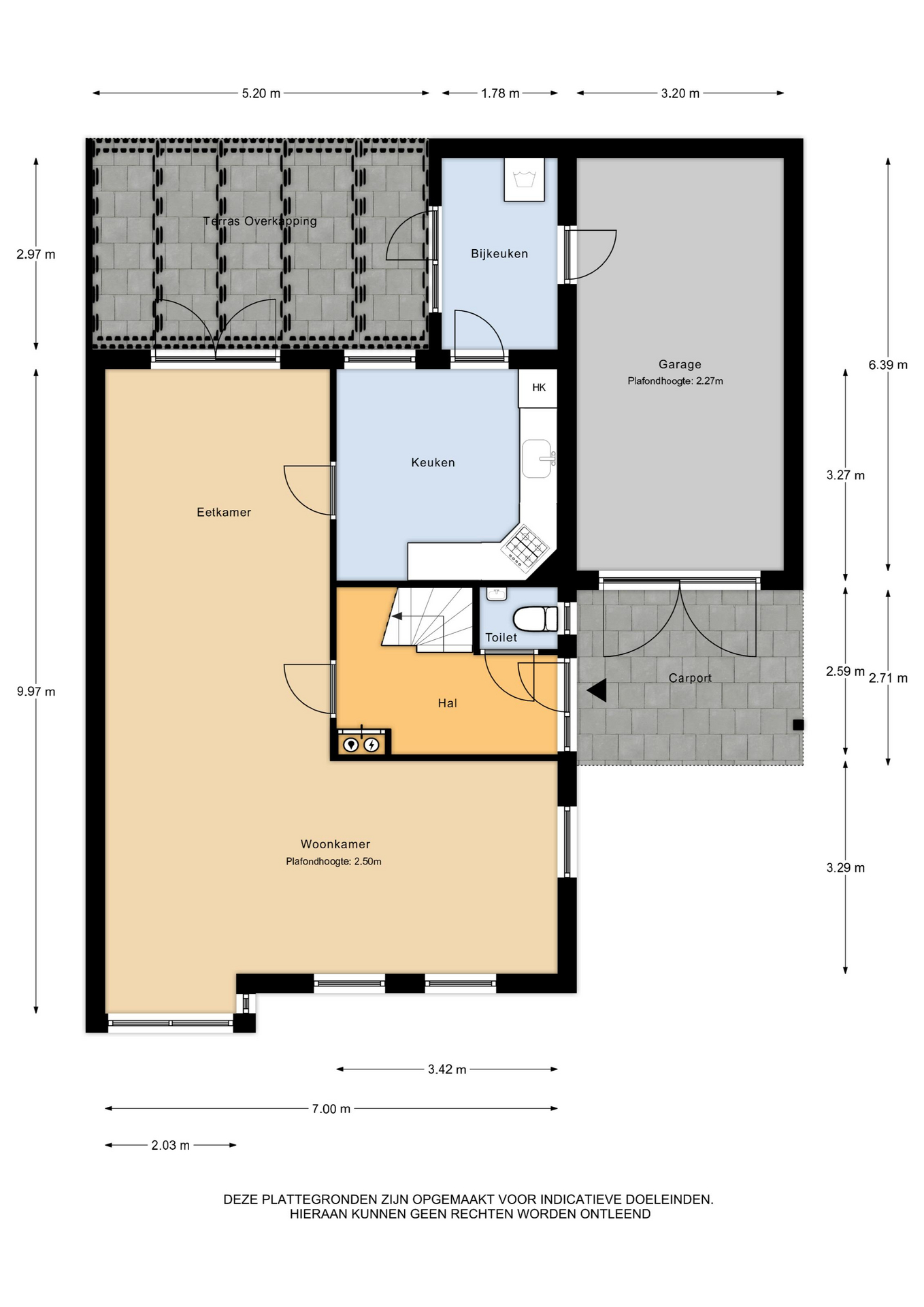
Indeling:
Begane grond: entree/ hal – toilet – L-vormige woonkamer met openslaande deuren naar het overdekte terras – dichte keuken met ruimte voor een eethoek – bijkeuken met wasmachine aansluiting – toegang tot de garage met dubbele deuren en achteringang.
1e Verdieping: overloop – drie ruime slaapkamers – royale badkamer met hoekbad, wastafelmeubel, douchecabine en toilet.
2e Verdieping: de ruime zolderverdieping met dakraam is middels een vaste trap bereikbaar.
Wetenswaardigheden:
Bouwjaar: 1996
Perceeloppervlakte: 349 m2
Isolatie: dak-, vloer-, muurisolatie en dubbel (HR) glas
Verwarming en warm water: CV-combiketel Nefit Trendline (2014)
Energielabel: B (opname augustus ’24)
Ruime woon- en leefvertrekken
Inpandig bereikbare garage met dubbele toegangsdeur
- 148 m2
- 349 m2
- 3
Kenmerken Abraham Kuyperhof 18
Overdracht
| Vraagprijs | € 449.018,- k.k. |
|---|---|
| Aanvaarding | In overleg |
Oppervlaktes en inhoud
| Perceel oppervlakte | 349 m2 |
|---|---|
| Woonoppervlakte | 148 m2 |
| Inhoud | 589 m3 |
Bouw
| Soort | Eengezinswoning |
|---|---|
| Bouwvorm | Bestaande bouw |
| Bouwjaar | 1996 |
| Dak type | Zadeldak |
| Isolatievormen | Dakisolatie, Muurisolatie, Vloerisolatie, Dubbelglas, HR glas |
| Energielabel | B |
Indeling
| Aantal verdiepingen | 3 |
|---|---|
| Aantal kamers | 4 |
| Aantal slaapkamers | 3 |
| Aantal badkamers | 1 |
Maandlasten
Ligging Abraham Kuyperhof 18
Voorzieningen
- De Uilenhorst katholieke brede school 331 m Noordsingel 72 WEZEP
- Christelijke Hogeschool Windesheim 7 km Campus 2 ZWOLLE
- AOC De Groene Welle 7 km Koggelaan 7 ZWOLLE
- Christelijke Hogeschool Windesheim 7 km Campus 2 ZWOLLE
- Theologische Universiteit van de Gereformeerde Kerk (Vrijg) in Nederland 11 km Broederweg 15 KAMPEN
Centraal gelegen informatie over de buurt
Aantal inwoners
In de gemeente
23.256
Leeftijd
in percentages van totaal
Huishoudsamenstelling
in percentages van totaal
21%
20% NL
33%
20% NL
46%
20% NL