€ 489.500,- k.k.
Goed onderhouden VRIJSTAANDE WONING met grote vrijstaande garage met smeerput, bergzolder en aparte fietsenschuur. De woning heeft totaal 4 slaapkamers, staat op een rustige locatie nabij het centrum van Wezep en is zoveel verduurzaamd dat het een energielabel A heeft!
Dus of je nu gaat voor de grote garage met smeerput en verdieping met werkkamer (verwarmd middels airco), de ruimte om het huis waar je genoeg ruimte hebt voor meerdere auto’s of de rustige ligging op loopafstand van het centrum en wat een fijne plek is om de kinderen in de tuin of buiten te laten spelen. Aan de Sneeuwbesstraat 9 staat een verzorgde en prettige woning op je te wachten!
Het bouwjaar gaat terug naar 1965, maar de laatste jaren is de woning gemoderniseerd en o.a. voorzien van 16 zonnepanelen, hybride warmtepompketel (2024) en gedeeltelijk vloerverwarming op de begane grond. De woning heeft een praktische indeling met o.a. een ruime living met woonkamer en open keuken met moderne keukenopstelling, vaste kasten die ideaal zijn als provisiekasten en een praktische bijkeuken met achteringang. Op de 1e verdieping zijn vier slaapkamers en een ruime berging met dakraam, wat ook als werkkamer gebruikt kan worden.
Voor de woning loopt een kleine straat die toegang biedt tot het rijtje woningen die zich aan deze zijde van de Sneeuwbesstraat bevinden. Hierdoor woon je wat betreft verkeer extra rustig. Het winkelcentrum bevindt zich op loopafstand, maar alle voorzieningen zijn door de centrale ligging per fiets makkelijk bereikbaar.
De gunstige ligging van Wezep t.o.v. de A28 en A50 en de aanwezigheid van het NS-station maken het dorp tot een ideale uitvalsbasis! Zwolle is met een kwartiertje bereikbaar per auto.
Indeling:
Begane grond: entree/ hal – toilet – trapopgang – woonkamer – open keuken met provisiekast – bijkeuken. De keuken uit 2020 is voorzien van een vaatwasser, koelkast met vriezer, inductiekookplaat en afzuigkap en combimagnetron.
1e Verdieping: overloop – vier slaapkamers – badkamer met wastafel, ligbad en douche – vaste kast met opstelling CV-ketel – ruime berging/ werkkamer.
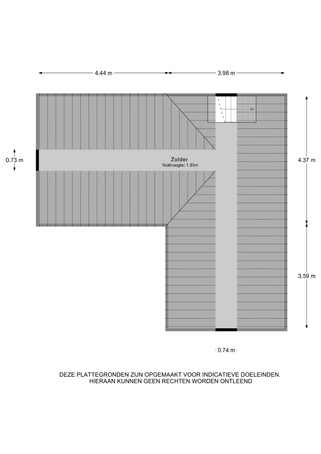
2e Verdieping: bergzolder.
Opstallen:
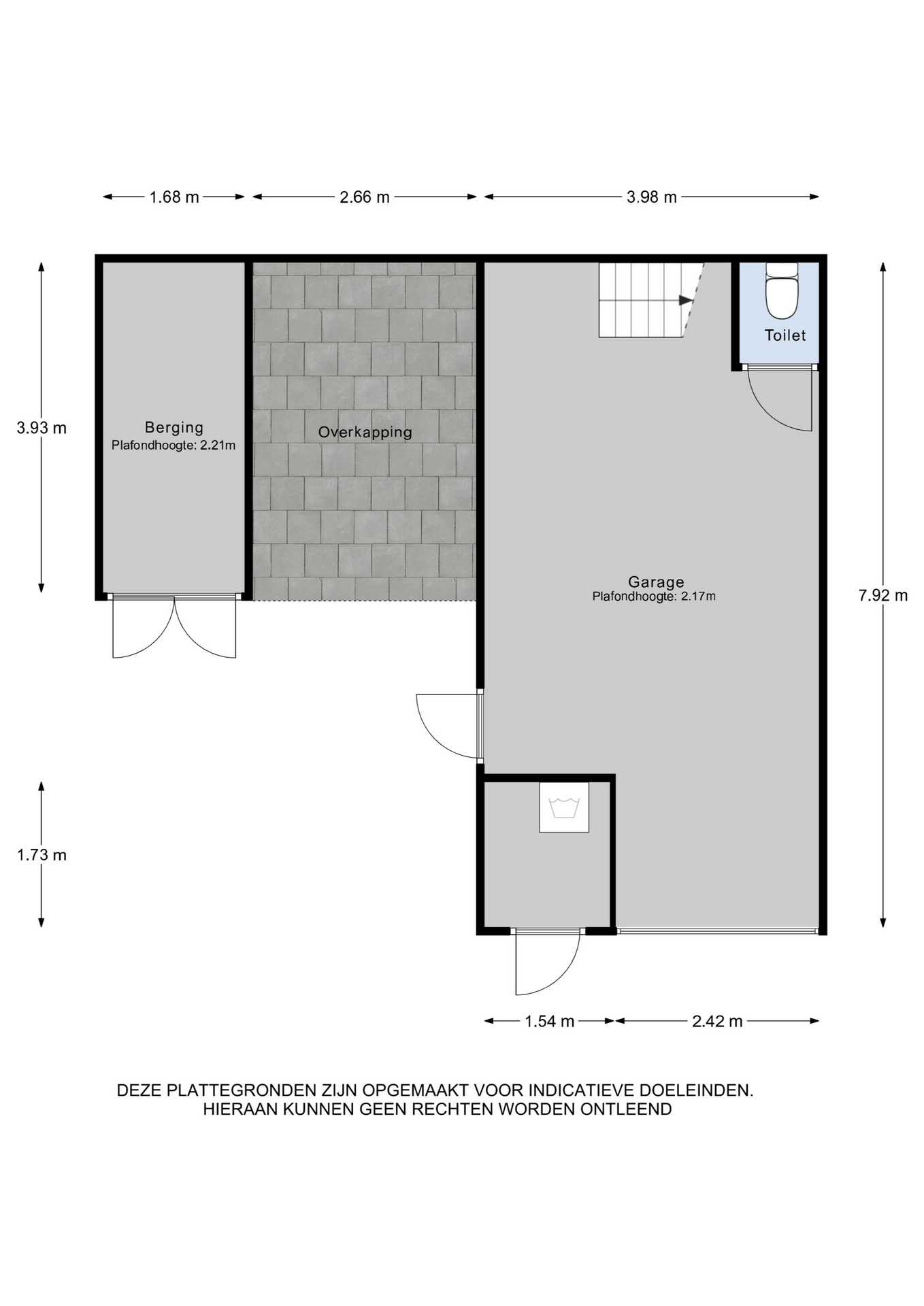
Garage: vrijstaande geïsoleerde garage met elektrische deur, smeerput, toilet en verdieping te gebruiken als bergzolder een werkkamer (met beperkte stahoogte). Afmeting ca. 7.9 x 4 m. Aparte berging met wasmachine- en drogeraansluiting.
Overkapping: voor gezellig samenzijn in de tuin
Aangebouwde schuur/ berging: ideaal voor de fietsen. Afmeting ca. 3.9 x 1.9 m.
Wetenswaardigheden:
Bouwjaar: 1965
Perceeloppervlakte: 363 m2
Isolatie: gedeeltelijk dak- en vloerisolatie, dubbel glas (m.u.v. badkamer)
Verwarming: hybride warmtepomp Remeha en Nefit Ketel (2024)
Vloerverwarming in woonkamer, keuken en hal
16 zonnepanelen
Energielabel A
Garage met smeerput, toilet, verdieping met werkkamer (v.v. airco). De voorbereiding van de vloerverwarming (buizen) zijn aanwezig in de garage.
Aparte fietsenberging
Dubbele oprit
Grondwaterpuls aanwezig
- 106 m2
- 363 m2
- 4
Kenmerken Sneeuwbesstraat 9
Overdracht
| Vraagprijs | € 489.500,- k.k. |
|---|---|
| Aanvaarding | In overleg |
Oppervlaktes en inhoud
| Perceel oppervlakte | 363 m2 |
|---|---|
| Woonoppervlakte | 106 m2 |
| Inhoud | 403 m3 |
Bouw
| Soort | Eengezinswoning |
|---|---|
| Bouwvorm | Bestaande bouw |
| Bouwjaar | 1965 |
| Dak type | Zadeldak |
| Isolatievormen | Dakisolatie, Vloerisolatie, Grotendeels dubbelglas |
| Energielabel | A |
Indeling
| Aantal verdiepingen | 3 |
|---|---|
| Aantal kamers | 5 |
| Aantal slaapkamers | 4 |
| Aantal badkamers | 1 |
Maandlasten
Ligging Sneeuwbesstraat 9
Voorzieningen
- Christelijke basisschool De Spoorzoeker 31 m Cotoneasterstraat 19A WEZEP
- Christelijke Hogeschool Windesheim 7 km Campus 2 ZWOLLE
- AOC De Groene Welle 7 km Koggelaan 7 ZWOLLE
- Christelijke Hogeschool Windesheim 7 km Campus 2 ZWOLLE
- Theologische Universiteit van de Gereformeerde Kerk (Vrijg) in Nederland 12 km Broederweg 15 KAMPEN
Centraal gelegen informatie over de buurt
Aantal inwoners
In de gemeente
23.256
Leeftijd
in percentages van totaal
Huishoudsamenstelling
in percentages van totaal
30%
20% NL
36%
20% NL
34%
20% NL